- Úvod
- >>
- Komíny a Vzduchotechnika
- >>
- Dymovody
- >>
- Čierne dymovody
- >>
- Iné
- >>
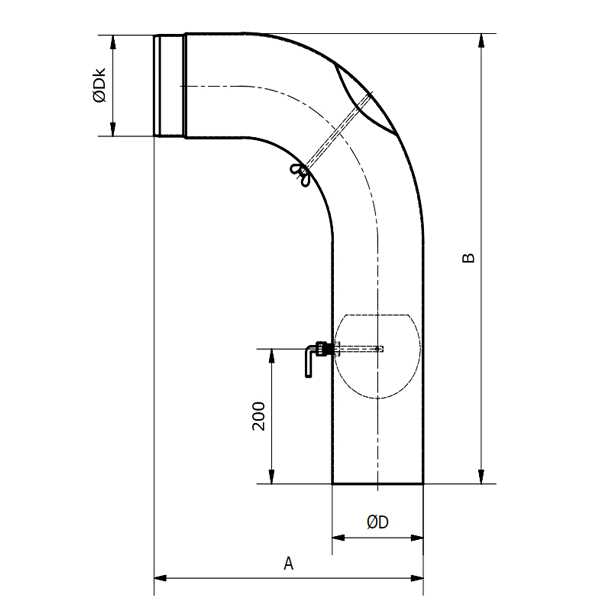
- Koleno 90° ťahané s predĺžením, klapkou a čistiacim otvorom, ø 130 / ø 135 / 420 / 640, Karl
Koleno 90° ťahané s predĺžením, klapkou a čistiacim otvorom, ø 130 / ø 135 / 420 / 640, Karl
Naposledy navštívené

